Jetzt sichern-Die letzte Einheit in dieser Größe! Solides Investment in beste Qualität und Lage

- Willkommen in Ihrem neuen Zuhause – einer Oase der Ruhe und Modernität mitten im begehrten Münchner Süden. Diese charmante 2-Zimmer-Erdgeschosswohnung im Neubauensemble Henry’s Court vereint zeitlose Architektur, exklusive Ausstattung und nachhaltige Technik zu einem Wohngefühl, das keine Wünsche offenlässt.
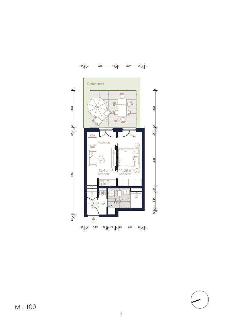
Auf rund 40 m² Wohnfläche erwartet Sie ein perfekt durchdachter Grundriss mit lichtdurchflutetem Wohn- und Essbereich, elegant integrierter Küche und direktem Zugang zur Südost-Terrasse mit privatem Gartenanteil. Hier verschmelzen Innen- und Außenraum zu einer harmonischen Einheit – ideal, um sonnige Stunden zu genießen oder den Feierabend in privater Atmosphäre ausklingen zu lassen.
Das Schlafzimmer bietet Ruhe und Geborgenheit, während das edle Badezimmer mit bodengleicher Dusche, Armaturen von Hansgrohe und Sanitärobjekten von VIGOUR höchsten Komfort verspricht. Ein praktische Garderobennische sowie ein Waschmaschinenanschluss runden das durchdachte Raumkonzept ab.
Die Ausstattung steht ganz im Zeichen moderner Wohnkultur: Eichenparkettböden, Fußbodenheizung, dreifach verglaste Fenster und eine intelligente Smart-Home-Steuerung schaffen ein stilvolles und komfortables Ambiente.
Auch technisch setzt Henry’s Court Maßstäbe: Das energieeffiziente Gesamtkonzept mit Luftwärmepumpe, Photovoltaikanlage und innovativer Energierückgewinnung ermöglicht eine nachhaltige Wärme- und Stromversorgung – ökologisch, zukunftssicher und wirtschaftlich.
Im idyllischen München-Solln, direkt am Siemenspark gelegen, genießen Sie das Beste aus zwei Welten: die Ruhe eines gewachsenen Wohnviertels mit altem Baumbestand – und zugleich die Nähe zur Münchner Innenstadt.
Diese Wohnung ist mehr als nur ein Zuhause – sie ist ein Statement für moderne Eleganz, Lebensqualität und Nachhaltigkeit. Flächen
- Wohnfläche: 40 m²
- Zimmer insgesamt: 2
- Schlafzimmer: 1
- Badezimmer: 1
- Etage: EG
- Stellplatzart: Tiefgarage
- TG-Stellplätze: 1
- Balkone: 1
- Balkon-/Terrassenfläche: 14,22 m²
Zustand & Erschließung
- Baujahr: 2025
- Zustand: Erstbezug
- Keller: voll unterkellert
Sonstiges
- Immobilie ist verfügbar ab: Sofort
* Energieeffiziente Bauweise im KfW-55-Standard
* Nachhaltiges Energiekonzept mit Luftwärmepumpe, Photovoltaikanlage und Energierückgewinnung
* Eichenparkettböden, gebürstet und matt geölt
* Fußbodenheizung in allen Räumen
* Bodentiefe, dreifach verglaste Fenster mit elektrischem Sonnenschutz
* Smart-Home-System zur komfortablen Steuerung von Licht, Heizung und Beschattung
* Design-Badezimmer mit bodengleicher Dusche und hochwertigen Armaturen von Hansgrohe
* Sanitärobjekte von VIGOUR, Serie Philippe Starck
* Große Südost-Terrasse mit privatem Gartenanteil
* Waschmaschinenanschluss in der Wohnung
* Video-Gegensprechanlage und elektrische Schließanlage
* Tiefgaragenstellplatz mit Vorbereitung für E-Ladestation
* Fahrrad- und Kinderwagenraum im Haus
* Ruhige Lage am Siemenspark mit direktem Zugang zu Grünflächen
* uvm.- Art der Ausstattung: luxuriös
- Befeuerung: Elektro
- Bodenbelag: Parkett
- Badausstattung: Dusche
- Küche: Einbauküche
- Energieausweis-Art: Bedarf
- Energieausweis gültig bis: 14.10.2034
- Endenergiebedarf: 17,60 kWh/(m²*a)
- Primärenergieträger: Strom
- Energieeffizienzklasse: A_PLUS
- Energieausweis-Ausstellungsdatum: 14.10.2024
- Energieausweis-Jahrgang: ab Mai 2014
- Energieausweis-Gebäudeart: Wohngebäude
Henry’s Court liegt in München-Solln, einem der begehrtesten und traditionsreichsten Stadtteile im Münchner Süden. Hier verbinden sich stilvolles Wohnen, Naturverbundenheit und urbane Lebensqualität auf einzigartige Weise.
Eingebettet in eine ruhige Seitenstraße direkt am Siemenspark genießen Sie die perfekte Balance aus Entspannung und Nähe zur Stadt. Der alte Baumbestand, gepflegte Nachbarschaften und das angrenzende Naturschutzgebiet prägen das grüne Umfeld. Spaziergänge durch die Isarauen, eine Joggingrunde im Forstenrieder Park oder ein Nachmittag im nahen Tierpark Hellabrunn – die Natur beginnt direkt vor der Haustür.
Trotz der idyllischen Umgebung ist die Anbindung hervorragend: Die U-Bahnlinie U3, diverse Busverbindungen sowie die S-Bahn-Haltestellen Solln und Siemenswerke bringen Sie in wenigen Minuten in die Münchner Innenstadt. Über das Autobahnkreuz München-Süd erreichen Sie schnell die A95 Richtung Starnberger See oder die A8 Richtung Alpen.
Im direkten Umfeld finden sich Supermärkte, Bäckereien, Cafés und Restaurants, ebenso wie Kindergärten, Schulen und Sporteinrichtungen. Ob beim Einkaufen, im Park oder im Lieblingsbistro um die Ecke – hier zeigt sich München von seiner entspanntesten Seite.
München-Solln steht für gehobenes Wohnen mit Charakter, eine gewachsene Nachbarschaft und höchste Lebensqualität – und genau das spiegelt Henry’s Court in jeder Facette wieder.- Kaufpreis: 479.000 €
- Stellplatzkaufpreis (Tiefgarage): 35.000 €
Grundrisse













































